【豊見城市ふるさと納税】新規返礼品(トレーラーハウス)のご紹介

~お得に自由な時間、贅沢な空間を~
この度、豊見城市では、株式会社パークホームズオキナワ様(所在地:豊見城市豊崎)の御協力のもと、令和7年10月1日より、ふるさと納税の返礼品としまして「トレーラーハウス」の取扱いを開始いたします。
高額返礼品となりますので、ご寄附をお申込みされる前に市担当者及び製造元担当者より、返礼品の詳細やお申し込みから納品までの流れをご説明させていただきます。
その後、設備機能やオプション等をお選びいただき、寄附設定価格及び諸経費(附帯工事費・輸送費等)お見積額をご提示しまして、ご納得いただけましたら、寄附申込のお手続きをご案内いたします。
ご興味がございましたら、まずはお気軽にお問い合わせくださいませ。
ご連絡お待ちしております。
【お問い合わせ先】
〇お手続きの流れ、寄附全般に関すること
沖縄県豊見城市商工観光課ふるさと納税班
T E L:098-850-5876
Mail:furusato-g@city.tomigusuku.lg.jp
〇返礼品の内容、詳細等に関すること
株式会社パークホームズオキナワ
T E L:098-856-6666
Mail:parkhomes.okinawa@gmail.com または kinjyo@parkhomes-okinawa.com
1.トレーラーハウスとは
トレーラーハウスとは、タイヤと車台が付いており、牽引することで移動・移設が可能な車両扱いの住宅や工作物です。建築物とは異なり「車両を利用した工作物」と定義され、建築確認が不要で、土地の定着物とならない条件を満たせば固定資産税の対象にならないこともあります。車検付きのものはナンバープレートが交付されて公道を走行可能で、様々な場所への設置や用途展開が可能です。
豊見城市ならではのトレーラーハウスの魅力!!
魅力1:沖縄の自然環境に対応
塩害、台風、高温多湿といった沖縄特有の厳しい気候に耐えるように設計されています。

魅力2:高耐久・高機密
鉄骨構造、耐久性の高い外壁、断熱仕様が標準装備されており、住宅としての快適な居住性を確保しています。


魅力3:多様な用途
住宅としてだけでなく、商業施設や宿泊施設、災害時の仮設住宅など、幅広い目的で利用できます。


2.製造元のご紹介
事業者名:株式会社 パークホームズオキナワ
所在地:
沖縄県豊見城市豊崎1-1223
工 場:
沖縄県豊見城市翁長864−14
会社ホームページ:
https://www.parkhomes-okinawa.com/
電話番号:
098-856-6666
mail:
parkhomes.okinawa@gmail.com または kinjyo@parkhomes-okinawa.com
事業内容
■ トレーラーハウス の設計・製造・販売・保守管理・メンテナンス
■ トレーラーハウスの輸入・宿泊施設運用、管理、プランニング、トレーラー輸送
■ テーマパークの運営(やんばるローカルベースYOFUKE)、ショベルパーク(トレジャーハンター)
会社概要
株式会社パークホームズオキナワは、トレーラーハウス製造販売の専門店として平成27年に設立されました。以後、沖縄県内外(離島含む)で300棟以上の販売実績を誇ります。
シャーシ・躯体も全て沖縄製作で塩害に強い溶融亜鉛メッキ(ドブ漬け)による防サビ仕様を採用しており、また、サッシやドア等は台風や横殴りの雨に強い沖縄仕様を使っているため、ハウスは長年ご愛用いただけます。
トレーラーハウスは寄附者様の大切な資産となりますので、沖縄産のハウスをお勧めいたします!
【オフィス/展示場】
豊見城市豊崎1-1223
【製作ヤード】
豊見城市翁長864−14
【製作ヤード内】
豊見城市翁長864−14
3.返礼品の各種プラン

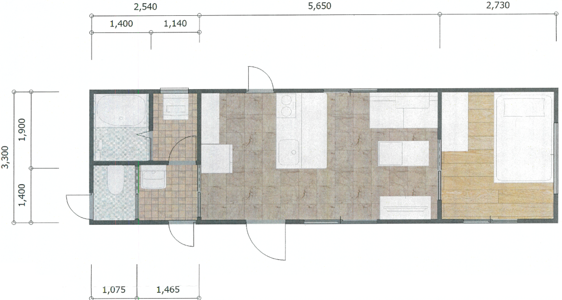
≪ Plan 1 ≫ ADVANCE
特 徴:
【水回りが整っている住居タイプ】
基本的な住居機能を完備した標準モデルで主に住宅用途としてのお求めが多く、最も人気なプランとなります。
寝室はシングルベット2台を設置してもゆとりのあるスペースを確保しており、水回りも他のプランより若干広めの仕様となっています。
寄附目安額:
4,600万円
規 格:
幅3.4m × 長さ11m(全長12.2m) × 高さ4.2m【34平米/10.4坪/21.2畳】
スペック(標準設備等):
【水回り】 ■ ユニットバス《メーカー:Panasonic 品名:MV1216》 ■ システムキッチン《メーカー:Panasonic 品名:MX1800》 ■ 洗面化粧台《メーカー:Panasonic 品名:エムライン》 ■ トイレ《メーカー:Panasonic 品名:アラウーノV》 ■洗濯パン
【断熱性能】 ■天井・壁に断熱材(16K)を標準設備
【電気設備】 ■コンセント:10個まで ■照明:全室内ダウンライト
【外壁材(サイディング)】 ■ニチハVシリーズ(20種類以上)の中から選択
【内壁・クロス】 ■サンゲツSP・リザーブシリーズの中から選択
画像(外観・内装・施工事例など)









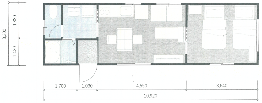
≪ Plan 2 ≫ GRANDE
特 徴:
【様々な用途に活用できる店舗、事務所モデル】
快適性と機能性を重視したプランとなります。水回り・寝室をコンパクトにし、その分リビングスペースを広く確保しています。また、本プランでは、対面キッチン型を採用しています。
寄附目安額:
5,000万円
規 格:
Plan 1と同規格
スペック(標準設備等):
【水回り】 ■ ユニットバス《メーカー:Panasonic 品名:オフローラ1316》 ■ システムキッチン《メーカー:Panasonic 品名:V-style 対面1835 V10シリース゛》 ■ 洗面化粧台《メーカー:Panasonic 品名:ウツクシース゛W750》 ■ トイレ《メーカー:Panasonic 品名:NewアラウーノV》 ■洗濯パン
【断熱性能】 ■天井・壁に断熱材(16K)を標準設備
【電気設備】40A/8回路 ■コンセント:10個まで ■照明:全室内ダウンライト
【外壁材(サイディング)】 ■ニチハVシリーズ(20種類以上)の中から選択
【内壁・クロス】 ■サンゲツSP・リザーブシリーズの中から選択
画像(外観・内装・施工事例など)









≪ Plan 3 ≫ GRANDE2
特 徴:
Plan2(GRANDE)をベースに水回りをさらにコンパクトにし、寝室とリビングのスペースを広く確保したプランとなります。
開口部(窓)を多く設置し、室内からの景観を意識した開放的な空間設計となっており、主に民泊や別荘など、宿泊者向けとしてのお求めが多いです。
寄附目安額:
4,800万円
規 格:
Plan 1と同規格
スペック(標準設備等):
【水回り】 ■ ユニットバス《メーカー:Panasonic 品名:オフローラ1316》 ■ システムキッチン《メーカー:Panasonic 品名:MX1800》 ■ 洗面化粧台《メーカー:Panasonic 品名:ウツクシース゛W750》 ■ トイレ《メーカー:Panasonic 品名:NewアラウーノV》 ■洗濯パン無※
【断熱性能】 ■天井・壁に断熱材(16K)を標準設備
【電気設備】40A/8回路 ■コンセント:10個まで ■照明:全室内ダウンライト
【外壁材(サイディング)】 ■ニチハVシリーズ(20種類以上)の中から選択
【内壁・クロス】 ■サンゲツSP・リザーブシリーズの中から選択
画像(外観・内装・施工事例など)






≪ Plan 4 ≫ SKELETON
特 徴:
建物の内部が壁や間仕切りなどで仕切られず、骨組み(スケルトン)の状態になっており、内装は寄附者様の好みや用途に合わせて自由に設計・施工することが可能です。
すべてこだわりの設備でカスタマイズしたい。事務所として活用したいという方におススメのプランとなります。
※本プランのみ、エアコンが標準設備に含まれています。
寄附目安額:
3,700万円
規 格:
Plan 1と同規格
スペック(標準設備等):
※【水回りはオプション】
【断熱性能】 ■天井・壁に断熱材(16K)を標準設備
【電気設備】40A/8回路 ■ルームエアコン:5.6kw ■コンセント:10個まで ■照明:全室内ダウンライト
【外壁材(サイディング)】 ■ニチハVシリーズ(20種類以上)の中から選択
【内壁・クロス】 ■サンゲツSP・リザーブシリーズの中から選択
画像(外観・内装・施工事例など)









4.オプション一例
【ジャグジー】
リゾートを思わせるバスタブやジャグジー、シャワーブースを取り揃えております。
【ウッドデッキ】
トレーラーハウスに大きめのウッドデッキでバーベキュー等、目的別に設置。全体にボリュームが出ます。
【琉球瓦】
トレーラーハウスに琉球瓦。実際の瓦は重量が重すぎバランスが悪くなるのでここはフェイクの赤瓦をセッティング。
【琉球畳】
琉球畳は沖縄特有の畳で、縁なしで太いイグサで作られた半畳です。
置き方によって市松模様になりデザイン性があります。
【琉球ガラス】
お部屋のドレスアップにいかがでしょうか?
リゾートらしさが倍増します。
【ロフト】
シングルロフト・ダブルロフトのオプションあり、有効面積を大幅に増やすことができます。
5.お申込みから納品までの流れ

6.注意事項
※高額返礼品となりますので、お問合せいただき商品のご説明と打ち合わせの上、お申込みいただきます。
※各行政機関への事前調査が必要になります。調査の結果によっては設置できない場合もございます。
※受注生産のため、ご注文から設置まで約3ヵ月~4カ月ほどかかります。
※運搬費用・設置費用等、必要に応じて別途費用が発生いたします。
※販売価格は仕様やプラン内容により異なります。
※画像はイメージです。
この記事に関するお問い合わせ先
企画部 商工観光課 ふるさと納税班
〒901-0292 沖縄県豊見城市宜保一丁目1番地1
電話番号:098-850-5876
ファックス:098-850-5343
お問い合わせフォーム



更新日:2025年11月07日